![]() ![]() ![]() ![]() |
![]() |
|
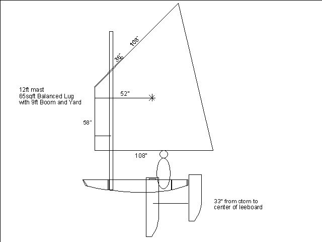
I build my PDRs with the leeboard directly under the Center of Effort of the sail. With a different sail, you'll want to move your leeboard to match the CE. Information on how to rig this sail: Micheal Storer's Performance Rigging pages Here is some information on how to calculate the CE of any sail you care to make: Michalak Essay. In my mind, the single most important thing you can do when building a Puddle Duck Racer is get the Center of Effort of the sail correct and then place your leeboard directly under it. |
|